Wieringerwaardstraat 363

1024 HM

AMSTERDAM

425000,- k.k.

Verkocht

Kenmerken

  • Vraagprijs

    425000,- k.k.

  • Soort woning

    bovenwoning

Bouw

  • Aantal kamers

    3

  • Slaapkamers

    2

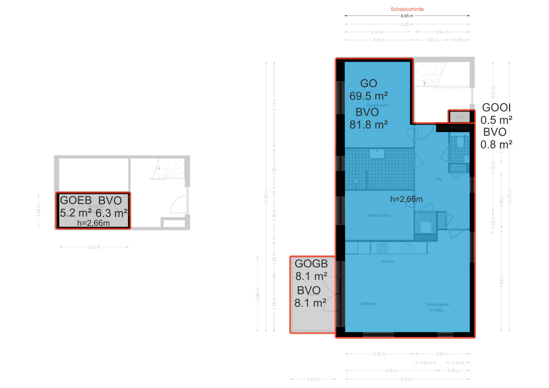
  • Woonoppervlakte

    70 m2

  • Inhoud

    245 m3

  • Bouwjaar

    2012

Omschrijving

Goed ingedeeld en licht appartement (70m2) op een fijne locatie in het mooie Amsterdam Noord met alle voorzieningen binnen handbereik! De woning is in 2012 opgeleverd, heeft een energielabel A en is voorzien van 2 slaapkamers en heerlijk zonnig terras. Neem snel contact op met kantoor voor een 1 op 1 bezichtiging!

Indeling:
Via het net onderhouden trappenhuis bereik je het appartement op de tweede etage. Een handige ruimte voor de jassen en schoenen is gecreëerd. Eenmaal binnen kom je terecht in een fijne hal die toegang geeft tot alle vertrekken. Aan de rechterzijde zijn de 2 slaapkamers en de badkamer gesitueerd. De slaapkamers zijn beide van goed formaat. De badkamer is maar liefst 7m2, waardoor een bad plaatsen tot de mogelijkheden behoort, ideaal!

Separaat is er een toilet en een ruimte voor de wasmachine en droger.

De living is een heerlijke ruimte! Door de hoekligging heb je aan alle zijden een raampartij. Er is genoeg ruimte voor een grote eettafel een fijne zithoek. De open keuken zorgt ervoor dat je in contact bent met je vrienden of familie als die gezellig komen eten.

Dan als kers op de taart, een mega balkon/terras van 9m2. Door de ligging op het zuidwesten is dit de perfecte plek voor de zomeravonden! Een gezellige barbecue of heerlijk alleen in de zon met een goed boek!

Op de begane grond is er nog een berging van meer dan 5m2.

Omgeving en bereikbaarheid:
Na een paar minuten lopen sta je in het winkelgebied Waterlandplein en aan de overzijde van de Ringsloot ligt tuindorp Nieuwendam met leuke restaurantjes en koffietentjes. Met de fiets ben je snel bij winkelcentrum boven ‘t IJ en het Purmerplein. Verder zijn er scholen, kinderopvang en een bushalte aan het einde van de straat. Na 5 minuten fietsen ben je bij het metrostation van de Noord-Zuidlijn, waardoor je snel bij Amsterdam CS en in het centrum bent. Liever met de pont naar het centrum? Het is maar 10 minuten fietsen door het mooie Noord. Er is verder genoeg gratis parkeerplek voor de deur.

De Waterlandpleinbuurt is een zeer groene, rustige buurt in Amsterdam Noord. Geniet van de ruimte en de vele voorzieningen, terwijl het bruisende centrum binnen handbereik is. Via de Zuiderzeeweg heb je een goede aansluiting op de Ring A10 en natuurgebied Waterland is een fantastische plek om te wandelen, fietsen en varen.

Vereniging van Eigenaren:
Deze kleinschalige VvE telt 3 leden en is gezond. De eigenaren doen zelf het beheer en in 2023 is een MJOP opgesteld. De maandelijkse servicekosten bedragen €100,36. Tevens is er een reservefonds.

Erfpacht:
De woning is gelegen op afgekochte erfpachtgrond. Het huidige tijdvak loopt tot 30 november 2059. Er is een PIP aanwezig, het eeuwigdurende tijdvak kan vastgeklikt worden op ca. €1200,- per jaar. (Tot 2059 betaal je geen erfpacht)

Bijzonderheden:
– 70m² (volgens BBMI norm);
– Goed ingedeeld en licht appartement;
– Ruim balkon van 9m2;
– Voorzien van 2 slaapkamers;
– Gelegen op Gemeentelijke erfpacht grond, afgekocht tot 2059;
– PIP aanwezig, vraag de makelaar om de documenten;
– Kleinschalige gezonde VvE;
– Energielabel A en HR++ glas;
– Maandelijkse servicekosten bedragen €100,36;
– Woning is in 2011/2012 opgeleverd;
– Oplevering in overleg;
– Er is pas een overeenkomst als de koopakte is getekend;
– Koopakte wordt opgemaakt door een notaris in Amsterdam.

“Deze informatie is door ons met de nodige zorgvuldigheid samengesteld. Onzerzijds wordt echter geen enkele aansprakelijkheid aanvaard voor enige onvolledigheid, onjuistheid of anderszins, dan wel de gevolgen daarvan. Alle opgegeven maten en oppervlakten zijn indicatief. Van toepassing zijn de NVM voorwaarden.”